人生就是博·(中国区)官方网站z6物流客栈妄想升级妄想
为配合公司“科技助力仓储治理提升”要求,仓储部开展“客栈妄想升级”的课题调研,进一步优化客栈内的停车位、装卸位、暂存区划分,提升作业效率。

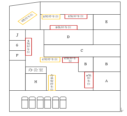
1)停车位设置
现佛山客栈内的停车位缺乏,未到操作的车辆占用装卸车位,办单车辆乱停放,岑岭期问题最为突出,严重影响客栈运作。整改建议:
a)佛山客栈门口外设立暂停区提供办单车辆停放,司机办单后凭单开车进场,按交单点信息抵达装卸区或周围的暂停车位,交单车辆停放办单处周围的暂停车位。
b)按功效将车位划分为装卸车位和暂停车位,并且用编号标识,如下图:

2)标识设置
a)库区标识:现在标识的字体较小,比照度不强,司机难识别。

b)指引标识:办单处、库区位置增强标识

3)显示屏设置
a)派单显示屏
在司机期待室设置两台电视机,一台显示已打印的单号,通知司机取单,镌汰与司机相同的时间本钱;另一台显示各个佛山客栈操作的进度,让司机清晰要抵达的佛山客栈所在(建议该为“客栈分派所在”)和轮候时间。电视机的数据泉源客栈治理系统。

d)操作进度LED显示屏
在操作量大的装卸平台显着清静区域(例如:B、C、D)装置LED设置显示屏,显示操作进度,与期待操作的司机坚持信息同步。

人生就是博·(中国区)官方网站z6首页

粤公网安备 44060502003207号
